Na sprzedaż mieszkanie o powierzchni 64,54 m2, położone w Zabrzu przy ul. Budowlanej, w dzielnicy Rokitnica. Lokal znajduje się na trzecim piętrze w czteropiętrowym budynku.
To propozycja dla osób poszukujących przestronnego mieszkania w funkcjonalnym układzie, w dobrze skomunikowanej części miasta. Lokal sprawdzi się zarówno dla rodziny z dziećmi, jak i jako inwestycja pod wynajem dla studentów.
Budynek jest po termomodernizacji, a wejście do klatki schodowej zabezpieczone jest domofonem. Klatka schodowa utrzymana jest w dobrym stanie, co wpływa na komfort codziennego użytkowania.
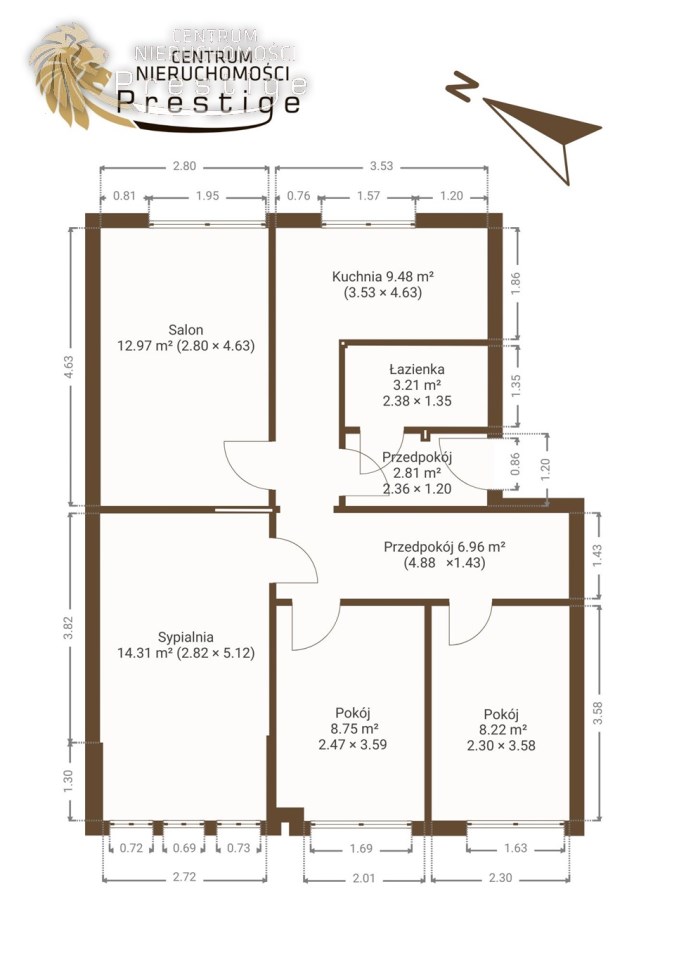
Układ mieszkania jest niezależny i bardzo funkcjonalny, co daje duże możliwości aranżacyjne. W skład lokalu wchodzą:
Dodatkowym atutem jest przynależna piwnica o powierzchni około 4m2 , która zapewnia przestrzeń do przechowywania.
Mieszkanie przeszło remont i stanowi solidną bazę do zamieszkania bez większych nakładów finansowych. W nieruchomości:
Ogrzewanie pochodzi z sieci miejskiej, natomiast ciepła woda z pieca gazowego. Mieszkanie jest dwustronne, z ekspozycją wschód zachód, co zapewnia bardzo dobre doświetlenie wnętrz przez cały dzień.
Miesięczny czynsz wynosi około 850 zł i obejmuje:
Lokalizacja zapewnia wygodę codziennego życia oraz bardzo dobrą komunikację. W pobliżu znajdują się sklepy, szkoły, przedszkola oraz przystanki autobusowe, w tym centrum przesiadkowe.
Dodatkowym atutem jest szybki wyjazd na autostradę A1, co umożliwia sprawne poruszanie się po całej aglomeracji. Bliskość Śląskiego Uniwersytetu Medycznego sprawia, że nieruchomość jest również atrakcyjna pod kątem inwestycyjnym.
To mieszkanie, które łączy funkcjonalny układ, dobrą lokalizację oraz gotowy standard do zamieszkania. Układ pomieszczeń daje elastyczność zarówno dla rodziny, jak i przy wynajmie.
Stan prawny: pełna własność, księga wieczysta, brak zadłużeń.
Zapraszam do kontaktu w celu uzyskania szczegółowych informacji oraz umówienia prezentacji.



