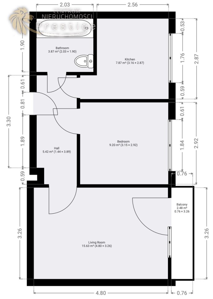
Na sprzedaż mieszkanie o powierzchni użytkowej 42,29 m², położone w Bytomiu przy ul. Pomorskiej, w cenionej dzielnicy Szombierki. Lokal znajduje się na8. piętrze dziesięciopiętrowego bloku po termomodernizacji. Wejście do klatki schodowej zabezpieczone jest domofonem, a bezpośrednio pod budynkiem dostępne są miejsca parkingowe dla mieszkańców.
Mieszkanie ma funkcjonalny układ i składa się z dwóch ustawnych pokoi, w tym salonu z wyjściem na balkon, oddzielnej kuchni, łazienki oraz przedpokoju. Dodatkowym atutem jest przynależna piwnica o powierzchni 2,40 m², która zapewnia dodatkową przestrzeń do przechowywania.
Lokal jest przeznaczony do remontu. Łazienka została już wyremontowana, okna PCV, a ogrzewanie oraz ciepła woda pochodzą z sieci miejskiej.
Miesięczny czynsz przy jednej osobie wynosi 700 zł i obejmuje fundusz remontowy oraz eksploatacyjny, wywóz nieczystości, zaliczkę na centralne ogrzewanie oraz zaliczkę na zimną wodę w wysokości 1 m³.
Nieruchomość zlokalizowana jest w dobrze skomunikowanej części Szombierek, z szybkim dostępem do pełnej infrastruktury miejskiej. W najbliższym otoczeniu znajdują się szkoły, przedszkola, sklepy, przychodnie lekarskie oraz przystanki komunikacji miejskiej. Dodatkowym atutem jest bardzo dobry dojazd do dróg wylotowych, co ułatwia codzienne przemieszczanie się po aglomeracji.
Stan prawny mieszkania to pełna własność z założoną księgą wieczystą, bez zadłużeń i obciążeń.
Zapraszam do zapoznania się z filmem prezentującym nieruchomość oraz do kontaktu w celu uzyskania szczegółowych informacji.



