Na sprzedaż mieszkanie o powierzchni 45,89 m2 , położone w Bytomiu przy ul. Karola Miarki (końcowy odcinek ulicy), w dzielnicy Śródmieście. Lokal znajduje się na wysokim parterze w czteropiętrowej kamienicy.
To propozycja dla osób poszukujących mieszkania z dużym potencjałem aranżacyjnym, w dobrze skomunikowanej części miasta. Lokal sprawdzi się zarówno dla rodziny, osoby starszej, jak i inwestora.
Budynek jest w bardzo dobrym stanie technicznym i został poddany termomodernizacji. Wejście do klatki zabezpieczone jest domofonem, a dla mieszkańców dostępne są miejsca parkingowe.
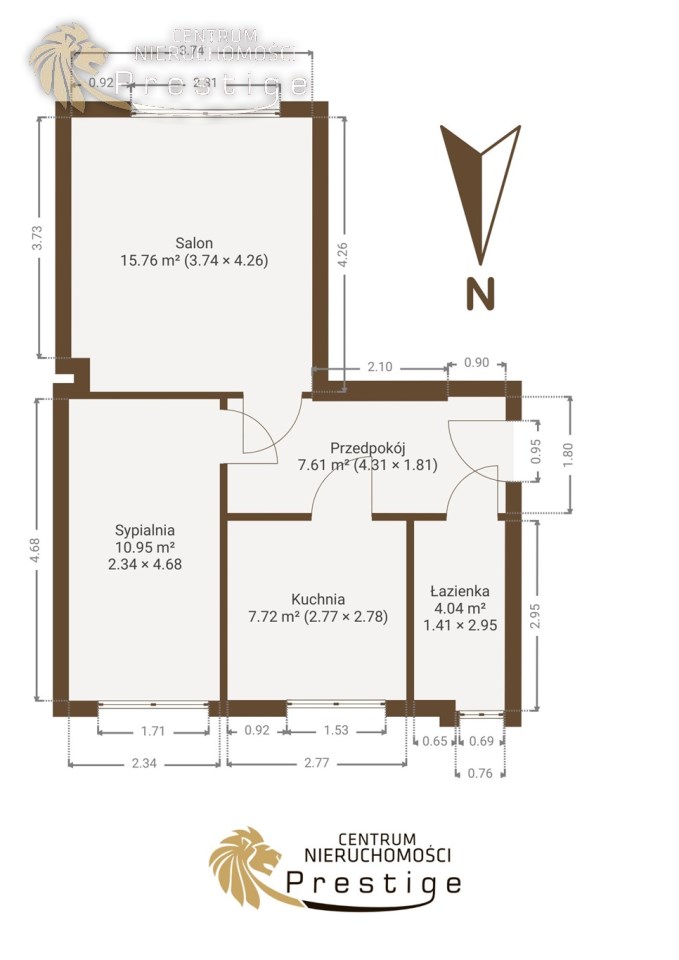
Układ mieszkania jest niezależny i funkcjonalny, co daje duże możliwości aranżacyjne. W skład lokalu wchodzą:
Dodatkowym atutem jest przynależna piwnica o powierzchni 5,12 m2, która zapewnia dodatkową przestrzeń do przechowywania.
Mieszkanie przeznaczone jest do kapitalnego remontu, co daje możliwość urządzenia wnętrza według własnej koncepcji. W lokalu zamontowano okna PCV, a instalacja centralnego ogrzewania jest już wykonana.
Ogrzewanie obecnie elektryczne, natomiast w mieszkaniu dostępny jest gaz, co daje możliwość zmiany źródła ogrzewania na gazowe. Ciepła woda pochodzi z bojlera elektrycznego.
Ekspozycja okienna północ–południe zapewnia dobrą cyrkulację powietrza oraz równomierne doświetlenie pomieszczeń w ciągu dnia.
Miesięczny czynsz wynosi 512 zł i obejmuje:
Lokalizacja zapewnia bardzo dobrą komunikację z miastami ościennymi. Szybki dojazd w kierunku Siemianowic Śląskich, Chorzowa, Katowic oraz autostrady A1 znacząco ułatwia codzienne funkcjonowanie.
W pobliżu znajdują się sklepy, szkoły, przedszkola oraz przystanki komunikacji miejskiej, co podnosi komfort życia w tej lokalizacji.
To nieruchomość z dużym potencjałem, zarówno do zamieszkania, jak i pod inwestycję.
Stan prawny: pełna własność, księga wieczysta, brak zadłużeń.
Zapraszam do kontaktu w celu uzyskania szczegółowych informacji oraz umówienia prezentacji.



