Sośnicowice (gw), Kozłów

Dom na sprzedaż

Opis nieruchomości

W kameralnym otoczeniu powstanie inwestycja, która łączy ponadczasową architekturę z nowoczesnym stylem życia. To kolekcja starannie zaprojektowanych domów w zabudowie szeregowej, gdzie minimalizm spotyka się z elegancją, a funkcjonalność z estetyką najwyższej próby.

Proste, geometryczne bryły, harmonijne zestawienie bieli i szarości z akcentami cegły klinkierowej oraz duże przeszklenia tworzą wyrafinowaną, spójną kompozycję. Architektura jest tu nie tylko formą – jest świadomym wyborem stylu.

Architektura z charakterem

Każdy detal został przemyślany, aby podkreślić prestiż inwestycji:

- nowoczesna, minimalistyczna linia zabudowy

- starannie dobrane materiały elewacyjne

- prywatne garaże w bryle budynku

To przestrzeń, która zachwyca proporcją, światłem i subtelną elegancją.

Przestrzeń, która pracuje dla Ciebie

Dwukondygnacyjne domy oferują czytelny podział na strefę dzienną i nocną, zapewniając komfort oraz prywatność domownikom. Duże przeszklenia wprowadzają naturalne światło, podkreślając wrażenie przestronności i otwartości.

Prywatne ogródki umożliwiają stworzenie indywidualnej strefy relaksu – miejsca na poranną kawę, rodzinne spotkania czy wieczorny odpoczynek w ciszy.

To inwestycja dla osób, które oczekują więcej:

więcej estetyki, więcej komfortu, więcej jakości.

Zamieszkaj w przestrzeni, która podkreśla Twój styl życia.

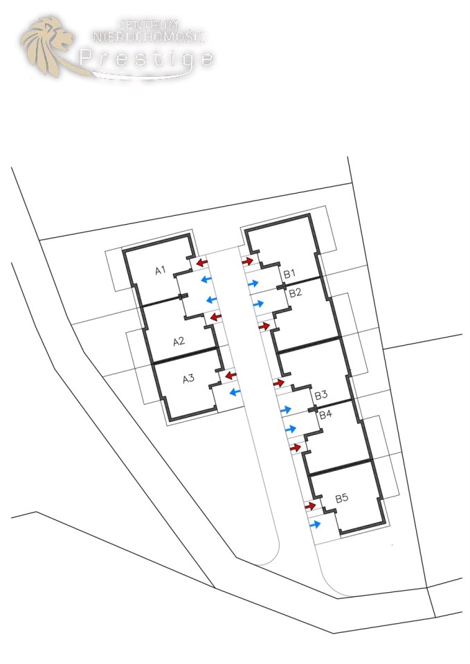
W pierwszym etapie będą budowane segmenty od B1 do B5

Ceny i powierzchnie:

Segment B1 pow. lokalu 136,7 m2 pow. terenu przynależnego 240,7m2 cena brutto 1100000 dostępny

Segment B2 pow. lokalu. 136,7m2 pow. terenu przynależnego 166,4 m2 cena brutto 98000 dostępny

Segment B3 pow. lokalu 136,7 m2  pow. terenu przynależnego 160,3 m2 cena brutto 980000 dostępny

Segment B4 pow. lokalu 136,7 m2 pow. terenu przynależnego 154,1m2 cena brutto 980000 dostępny

Segment B5 pow. lokalu 140,47 m2 pow. terenu przynależnego 251,9m2 cena brutto 1100000 dostępny

Inwestycja w stanie deweloperskim zostanie oddana do grudnia 2027

Kupujący nie płaci PCC, oraz prowizji biura.

Zapraszam do rezerwacji lokali
Krzysztof Nikodem

Nota prawna

Opis oferty zawarty na stronie internetowej sporządzany jest na podstawie oględzin nieruchomości oraz informacji uzyskanych od właściciela, może podlegać aktualizacji i nie stanowi oferty określonej w art. 66 i następnych K.C.

Szczegóły oferty

Symbol oferty NKTX-DS-1160
Powierzchnia 137,00 m²
Powierzchnia działki 166 m²
Liczba pokoi 5
Rodzaj domu segment
Technologia budowlana ceramiczny porotherm
Opłaty wg liczników prąd, woda
Liczba pięter w budynku 1
Garaż w budynku
Stan prawny Własność
Okna nowe PCV
Instalacje nowe
Liczba tarasów 1
Zagosp. działki niezagospodarowana
Ukształtowanie działki płaska
Kształt działki prostokat
Stan budynku do wykończenia
Ogrodzenie działki siatka
Rok budowy 2026
Gaz brak
Woda jest
Dojazd droga utwardzona
Otoczenie zabudowa wielorodzinna
Ogrzewanie pompa ciepła
Alarm tak
Odl. do sklepu [m] 150 m
Odl. do szkoły [m] 200 m
Odl. do przedszkola [m] 200 m
Tarasy taras duży
Drzwi antywłamaniowe tak
Prąd jest
Kanalizacja szambo
Klucze tak

Lokalizacja

Kalkulator kredytowy

PLN
%
Wysokość raty

Kalkulator kosztów

PLN
PLN
PLN
PLN
PLN
PLN
%
PLN
Podatek od czynności cywilno-prawnych
Taksa notarialna (opłata notarialna)
VAT od taksy notarialnej (opłaty notarialnej)
Wniosek do WKW
VAT od wniosku do WKW
Prowizja agencji nieruchomości
VAT od prowizji agencji nieruchomości
Wypisy aktu notarialnego - około
RAZEM (cena + opłaty)

Napisz do nas

Proszę wypełnić to pole
Proszę wypełnić to pole
Proszę wypełnić to pole
Proszę wypełnić to pole
Trwa wysyłanie...

Ta strona wykorzystuje pliki cookies w celach statystycznych oraz w celu dostosowania naszych serwisów do indywidualnych potrzeb klientów. Zmiany ustawień dotyczących plików cookie można dokonać w dowolnej chwili modyfikując ustawienia przeglądarki. Korzystanie z tej strony bez zmian ustawień dotyczących cookies oznacza, że będą one zapisane w pamięci urządzenia.

rozumiem
bodyNews