Bytom

Mieszkanie na sprzedaż

Opis nieruchomości

Duża kawalerka w spokojnej lokalizacji - Bytom

  Przedstawiamy najnowszą ofertę sprzedaży lokalu mieszkalnego , położonego na bardzo wysokim parterze w budynku przy ulicy Towarowej w Bytomiu . Powierzchnia mieszkania wynosi 38,04 m2 , dodatkowo piwnica 10,30 m2 oraz komórka lokatorska 4,58 m2 - co daje łączną powierzchnię 52,92 m2. Klatka schodowa - świeżo po remoncie w jasnej kolorystyce . 

  Dla mieszkańców dostępny wspólny ogródek , gdzie można spędzać czas na świeżym powietrzu relaksując się w otoczeniu zieleni , spotykając się z sąsiadami lub znajomymi lub cieszyć się chwilą spokoju po ciężkim dniu.

   Opisywana nieruchomość jest w stanie technicznym dobrym - do zamieszkania . Okna PCV wymienione ok 5-6 lat temu ( okno w pomieszczeniu znajdującym przy kuchni -  rok temu ) , na podłogach płytki oraz panele , instalacja elektryczna wymieniona ok 20 lat temu - w pełni sprawna . Ogrzewanie elektryczne - panele na podczerwień . Ciepła woda z bojlera. 

Dwustronna ekspozycja (południe-północ) sprawia, że światło miękko wędruje przez wnętrza przez cały dzień. Poranki są jasne i świeże, popołudnia przyjemnie ciepłe. Mieszkanie jest bardzo dobrze doświetlone i daje poczucie lekkości.

Najważniejsze atuty nieruchomości : 
bardzo wysoki parter
spokojna lokalizacja bez natłoku samochodów 
niski czynsz w wysokości TYLKO 394.53 zł 
parking dla mieszkańców bezpośrednio przy budynku 

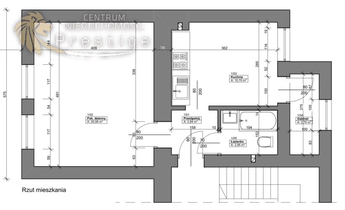
   Powierzchnie poszczególnych pomieszczeń zostały wyszczególnione w załączonym rzucie - zapraszamy do zapoznania się . W celu uzyskania szczegółowych informacji , zapraszam do kontaktu . Lokal bez zadłużeń . Odrębna własność - założona KW. 
 
  Lokalizacja  sprzyja rodzinom z dziećmi z uwagi na  sąsiedztwo szkoły podstawowej, przedszkola, nowoczesnego obiektu sportowego , na którym posadowione jest lodowisko , otwarte rolkowisko wraz z boiskami różnych dyscyplin sportowych, a także dla osób starszych , które pragną spokoju od zgiełku miasta . 

Nota prawna

Opis oferty zawarty na stronie internetowej sporządzany jest na podstawie oględzin nieruchomości oraz informacji uzyskanych od właściciela, może podlegać aktualizacji i nie stanowi oferty określonej w art. 66 i następnych K.C.

Szczegóły oferty

Symbol oferty NKTX-MS-1169
Powierzchnia 38,04 m²
Powierzchnia użytkowa 38,04 m²
Liczba pokoi 1
Piętro wysoki parter
Rodzaj budynku kamienica
Standard
Opłaty w czynszu administracja, fundusz remontowy
Liczba pięter w budynku 3
Piwnica 10,30 m²
Stan lokalu Do wprowadzenia
Stan prawny Własność
Mies. czynsz admin. 394 PLN
Balkon brak
Usytuowanie dwustronne

Lokalizacja

Kalkulator kredytowy

PLN
%
Wysokość raty

Kalkulator kosztów

PLN
PLN
PLN
PLN
PLN
PLN
%
PLN
Podatek od czynności cywilno-prawnych
Taksa notarialna (opłata notarialna)
VAT od taksy notarialnej (opłaty notarialnej)
Wniosek do WKW
VAT od wniosku do WKW
Prowizja agencji nieruchomości
VAT od prowizji agencji nieruchomości
Wypisy aktu notarialnego - około
RAZEM (cena + opłaty)

Podobne oferty

mieszkanie na sprzedaż - Bytom

mieszkanie na sprzedaż

Bytom
2 pokoje 49,00 m2 3 448,98 zł/m2
mieszkanie na sprzedaż - Bytom

mieszkanie na sprzedaż

Bytom
1 pokój 31,00 m2 3 709,68 zł/m2
mieszkanie na sprzedaż - Bytom

mieszkanie na sprzedaż

Bytom
1 pokój 32,00 m2 3 996,88 zł/m2
mieszkanie na sprzedaż - Bytom

mieszkanie na sprzedaż

Bytom
2 pokoje 46,66 m2 3 643,36 zł/m2

Napisz do nas

Proszę wypełnić to pole
Proszę wypełnić to pole
Proszę wypełnić to pole
Proszę wypełnić to pole
Trwa wysyłanie...

Ta strona wykorzystuje pliki cookies w celach statystycznych oraz w celu dostosowania naszych serwisów do indywidualnych potrzeb klientów. Zmiany ustawień dotyczących plików cookie można dokonać w dowolnej chwili modyfikując ustawienia przeglądarki. Korzystanie z tej strony bez zmian ustawień dotyczących cookies oznacza, że będą one zapisane w pamięci urządzenia.

rozumiem
bodyNews